ぶらり車いすバリアフリー旅行

バリアフリーの宿・ダイワロイネットホテル八戸

バリアフリーの宿・
ダイワロイネットホテル八戸

管理人は両下肢重度障害者ですが、生きる『ちから』を与えてくれる旅行が大好きです。
当事者の立場から多くの人達に『ちから』を与える情報を発信していく活動がしています。
両下肢重度障害者旅行で快適な宿泊は必須条件です。
車いすで快適に泊まれる宿を探すのは大変です。
そんな大変さを軽減する手助けになればと始めたのが、ハンディに優しいバリアフリーの宿の紹介です。

ホテル基本情報

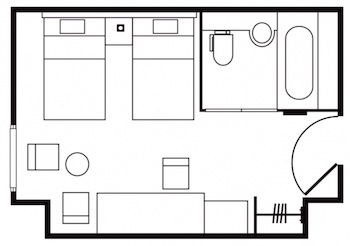
○障害者対応客室:段差のなく、広さが31m²、定員2名、122×203cm×2台のベッドサイズのユニバーサルツインルーム1室。車いすでのご利用を想定した思いやりスペース。バスルームはスライドドアを採用し、シャワーチェア・手すりがありますが、腰掛けスペースは手摺が邪魔して取れません。シャワーチェアは背もたれ付き・アームサッポートなし・座面までの高さ約44cmで、バスタブ高さ48cmより少し低めとなります。
○車椅子でご利用いただける駐車場/1台分
○車椅子での単独行動(館内):可能
○車椅子対応共用トイレ/1ヶ所(うち洗浄器付きトイレ:1ヶ所)
○車椅子用エレベーター/1台(うち音声案内あり:1台)
○貸出し用車いす:あり
○盲導犬や介助犬への対応:あり
○周辺の人気観光スポット:奥入瀬渓流、十和田湖(青森県)、乙女の像 、八食センター、蕪島、八戸市博物館、奥入瀬湧水館、奥入瀬渓流館 、東八甲田家族旅行村、八戸市水産科学館マリエント、青森県立三沢航空科学館、十和田市現代美術館、石ヶ戸
○JR本八戸駅南口より徒歩約10分/JR八戸駅より車で約20分/三沢空港直結リムジンバス停留所目の前

腰掛けスペース

シャワーチェア

初心者向けミラーレスカメラ

重さから選ぶミラーレスカメラ

白神山地新緑:5月下旬~6月上旬

奥入瀬渓流紅葉:10月初旬〜中旬

楽天トラベルへ

○地図を見る

お客様の声

○2023年11月10日総合評価 4.27 、サービス 4.15、立地 4.49、部屋 4.28、設備・アメニティ 4.04、風呂 3.92、食事 4.14
○バリアフリーの関する口コミ:2/2976件。

浴室周り

浴室にはアームサポート無し・背もたれがあり・座面高さ約44cmのシャワーチェア・手すりがあります。
ハンディのちから:ハンディ生活にちから(力)になる応援情報サイト内の画像・素材を
無断で複製・転載・転用することはご遠慮ください。
Copyright(C)2005.ハンディのちからAll Right Reserved.