ぶらり車いすバリアフリー旅行

バリアフリーの宿

バリアフリーの宿・
ダイワロイネットホテル熊本銀座通りPREMIER

管理人は両下肢重度障害者ですが、生きる『ちから』を与えてくれる旅行が大好きです。
当事者の立場から多くの人達に『ちから』を与える情報を発信していく活動をしています。
両下肢重度障害者旅行で快適な宿泊は必須条件です。
車いす利用者でも快適に入浴でき泊まれる宿を探すのは大変です。
そんな大変さを軽減する手助けになればと始めたのが、ハンディに優しいバリアフリーの宿の紹介です。

ホテル基本情報

○障害者用駐車場:ホテル1階に立体式の提携駐車場あり。
○館内&玄関段差:段差がなしまたはスロープ対応で坂がありますが車いすで走行可能。
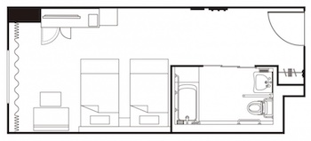
○バリアフリールーム:30㎡・最大定員2名のユニバーサルツインルームがあります。バス・トイレはユニバーサル対応のユニットバス。予約はお電話もしくは公式サイトから。ベッドサイズ:110cm×195cm。浴槽には広い腰掛けスペースがあり、少し歩ける車椅子ユーザーでも湯船に入れます。
○車いす対応エレベーター:一般仕様エレベーターあり。
○車いす利用可能なトイレ:あり
○貸出用車椅子
○盲導犬や介助犬、聴導犬への対応:可
○周辺の人気観光スポット:熊本城、雲巌寺、本妙寺、藤崎八旛宮、島田美術館、夏目漱石内坪井旧居、旧細川刑部邸、熊本市動植物園 、小泉八雲熊本旧居、雲巌寺の五百羅漢、水前寺成趣園、熊本藩主細川家墓所・泰勝寺跡(立田自然公園)、横井小楠記念館・四時軒、後藤是山記念館、熊本近代文学館
○熊本市電「花畑町駅」より徒歩2分/「熊本桜町バスターミナル」より徒歩約6分

お客様の声

○2023年9月1日総合評価4.29 、サービス 3.99、立地 4.46、部屋 4.48、設備・アメニティ 4.10、風呂 4.19、食事 4.00
○バリアフリーの関する口コミ:0/312件。

浴室廻り

浴槽には広い腰掛けスペースがあり、少し歩ける車椅子ユーザーでも湯船に入れます。
ハンディのちから:ハンディ生活にちから(力)になる応援情報サイト内の画像・素材を
無断で複製・転載・転用することはご遠慮ください。
Copyright(C)2005.ハンディのちからAll Right Reserved.