ぶらり車いすバリアフリー旅行

バリアフリーの宿

バリアフリーの宿・
ザ・レジデンシャル
スイート・福岡

管理人は両下肢重度障害者ですが、生きる『ちから』を与えてくれる旅行が大好きです。
当事者の立場から多くの人達に『ちから』を与える情報を発信していく活動をしています。
両下肢重度障害者旅行で快適な宿泊は必須条件です。
車いす利用者でも快適に入浴でき泊まれる宿を探すのは大変です。
そんな大変さを軽減する手助けになればと始めたのが、ハンディに優しいバリアフリーの宿の紹介です。

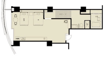
ホテル基本情報

○障害者対応客室:面積54m2(約33畳、バルコニーあり)。2階。定員:1~3名様。140cm幅のダブルベッド1台と、120cm幅のセミダブルベッド1台で車椅子の方に対応したバリアフリーのツインルームをご用意致しております。広々としたツインタイプ。車椅子での移動が容易なよう、お部屋の入り口からバスルームに至るまで、バリアフリー対応です。引き手の奥に洗面所、トイレ、バスルームがあります。車椅子の方が出入りしやすい、段差のない入り口。洗面所、トイレ、バスルームへ続くスロープ。滑りにくく緩やかな傾斜で、手すりも装備しています。手すり、背もたれクッションを装備した、ウォシュレット対応のトイレ。緊急時の呼び出しベルも設置。浴室は入り口は引き戸タイプ。車椅子のまま出入りしやすいよう、間口を十分にとっています。広々とした洗い場は、介助者が同伴でも余裕の広さ。手すりも随所に装備しています。入浴用椅子・バスボード・浴槽脇腰掛けスペースも完備
○障害者対応駐車場:あり
○車椅子の単独移動(客室または館内):あり
○障害者対応エレベーター:あり
○障害者対応トイレ:あり
○貸出し用車いす:あり
○盲導犬や介助犬への対応:可
○周辺の観光:海の中道海浜公園・能古島・住吉神社・「博多町家」ふるさと館・太宰府天満宮・大濠公園・キャナルシティ
○地下鉄西新駅1番出口徒歩10分

腰掛けスペース

バスボード

シャワーチェア

初心者向けミラーレスカメラ

重さから選ぶミラーレスカメラ

アフィリエイト

○バリアフリールームのご予約はお電話にて承ります。
○地図を見る

お客様の声

○2019年7月2日総合評価 4.35 、サービス 3.94、立地 4.17、部屋 4.43、設備・アメニティ 4.07、風呂 3.80、食事 4.04
○2010年7月19日総合評価 4.30 、サービス 3.92、立地 4.02、部屋 4.46、設備・アメニティ 4.04、風呂 3.84、食事 3.77
○バリアフリーの関する口コミ:6/4445件。

浴槽周り

ハンディのちから:ハンディ生活にちから(力)になる応援情報サイト内の画像・素材を
無断で複製・転載・転用することはご遠慮ください。
Copyright(C)2005.ハンディのちからAll Right Reserved.