ガーデニング
健康生活
トラベル
写真・カメラ
パソコン
ぶらり車いすバリアフリー旅行
バリアフリーの宿・箱根ホテル小涌園
全国のバリアフリー宿を見る
神奈川県のバリアフリー宿を見る
アフィリエイト
箱根ホテル小涌園
○地図を見る
○管理人は両下肢重度障害者ですが、生きる『ちから』を与えてくれる旅行が大好きです。
当事者の立場から多くの人達に『ちから』を与える情報を発信していく活動をしています。
両下肢重度障害者旅行で快適な宿泊は必須条件です。
車いす利用者でも快適に入浴でき泊まれる宿を探すのは大変です。
そんな大変さを軽減する手助けになればと始めたのが、ハンディに優しいバリアフリーの宿の紹介です。
お客様の声
○2023年10月25日総合評価 4.31 、サービス 4.18、立地 4.46、部屋 4.28、設備・アメニティ 3.67、風呂 4.46、食事 4.62
○バリアフリーの関する口コミ:0/39件。
浴槽周り
腰掛けスペース
シャワーチェア
初心者向けミラーレスカメラ
重さから選ぶミラーレスカメラ
箱根新緑:5月初旬〜5月中旬
ホテル基本情報
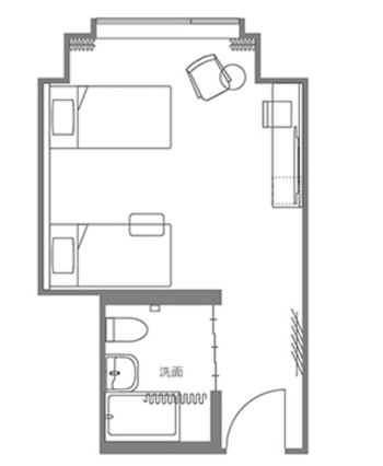
○障害者対応客室:ユニバーサルルーム(禁煙)を4室準備しております。ユニバーサルルームは各フロア1室ずつエレベーターから一番近い部屋でご用意しております。広さ:30平米、定員:大人2名、階数:2~5F、設置ベッド:ベッド幅100cm×2。3点ユニットバスで、シャワーチェア・浴槽脇の腰掛けスペースへ移乗し、湯船に入れます。
○車の場合は、部屋まで段差無しで利用いただけます(箱根登山バス「小涌園」停留所からの場合は多少の段差、下り坂がありますので車でお越しをおすすめしております)。
○介助者なしで館内車椅子移動:可能。レストラン店内は段差がなく、車椅子のまま利用できます。
○障害者用駐車場:あり
○車椅子対応エレベーター:あり
○車椅子対応トイレ:あり
○貸切風呂:ユニバーサルタイプの貸切風呂あり
○貸出し用車いす:あり
○盲導犬や介助犬への対応:可
○3種類の貸切露天風呂があり、入り口はほぼ段差がありません。脱衣所まで引き戸で、段差もありません。「檜の湯」の高く無い浴槽には手摺もあり、シャワーチェアがある洗い場も近いです。車椅子のまま、洗い場や手摺まで移動できます。管理人なら、持参の両4点杖で安全に移動できる距離です。
○周辺の人気観光スポット:芦ノ湖、箱根湯本、大涌谷、ポーラ美術館、箱根美術館、箱根関所、白雲洞茶苑、箱根ロープウェイ、箱根強羅、大観山、箱根湿生花園、箱根強羅公園、長安寺、箱根園水族館、箱根神社
○箱根登山鉄道 強羅駅より路線バスにて10分。
快適宿泊・神奈川県(箱根)
箱根パークス吉野
はつはな
湯本富士屋
強羅佳ら久
快適宿泊・神奈川県(箱根・横浜)
箱根吟遊
箱根ハイラ
メッツ横浜
ナビオス横浜
快適宿泊・神奈川県(横浜)
ヨコハマグ
メッツ鶴見
ダイワ新横浜
ロイヤル横浜
快適宿泊・神奈川県(横浜・鎌倉・小田原)
東急REI
メッツ鎌倉大船
メトロポリ鎌倉
ヒルトン小田原
トラベルローカルナビ
移動方法・手段
快適な宿泊
観光スポット
地図で探す観光地
ハンディのちから:ハンディ生活にちから(力)になる応援情報サイト内の画像・素材を
無断で複製・転載・転用することはご遠慮ください。
Copyright(C)2005.ハンディのちからAll Right Reserved.