ガーデニング
健康生活
トラベル
写真・カメラ
パソコン
ぶらり車いすバリアフリー旅行
ニューグリーンピア津南・バリアフリーの宿
全国のバリアフリーの宿を見る
中部地方のバリアフリーの宿を見る
○管理人は両下肢重度障害者ですが、生きる『ちから』を与えてくれる旅行が大好きです。
当事者の立場から多くの人達に『ちから』を与える情報を発信していく活動がしています。
両下肢重度障害者旅行で快適な宿泊は必須条件です。
車いすで快適に泊まれる宿を探すのは大変です。
そんな大変さを軽減する手助けになればと始めたのが、ハンディに優しいバリアフリーの宿の紹介です。
アフィリエイト
ニュー・グリーンピア津南
○バリアフリールームの予約はホテルの公式サイトでのインターネット予約はできません。電話予約となります。
○地図を見る
お客様の声
○2022年9月2日総合評価3.84 、サービス 3.79、立地 4.05、部屋 3.93、設備・アメニティ 3.67、風呂 4.12、食事 3.56
○バリアフリーの関する口コミ:0/640件。
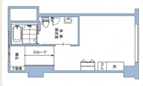
バリアフリールーム
湯船に移乗できるチェア・手すりがあります。
ホテル基本情報
○バリアフリー用トイレ
○バリアフリールーム:客室内にバリアフリーバス(手すり&シャワーチェア)あり、客室内トイレに手すりあり
○館内の点字案内
○大浴場浴槽に手すりあり
○館内に車椅子利用可能なトイレあり
○高齢者用料理への対応可能
○アレルギーに配慮した料理への対応可能
○施設スタッフによる介助・補助対応が可能
○貸出し用車いす:あり
○周辺の人気観光スポット:越後ゆきくら館(見学)、銀山平、清津峡、雲洞庵、大棟山美術博物館、西福寺・開山堂、目黒邸(国指定重要文化財)
○越後湯沢駅より大自然を楽しみながら送迎バスで約50分(要3日前予約)/関越自動車道塩沢石打ICより約30km。
シャワーチェア
初心者向けミラーレスカメラ
重さから選ぶミラーレスカメラ
快適宿泊・新潟県(I)
ANAクラウンプラ新潟
ひなの宿ちとせ
いなもと
快適宿泊・新潟県(II)
湯沢ニューオータニ
双葉
トラベルローカルナビ
移動方法・手段
快適な宿泊
観光スポット
地図で探す観光地
ハンディのちから:ハンディ生活にちから(力)になる応援情報サイト内の画像・素材を
無断で複製・転載・転用することはご遠慮ください。
Copyright(C)2005.ハンディのちからAll Right Reserved.