ぶらり車いすバリアフリー旅行

金沢東急ホテル・バリアフリーの宿

アフィリエイト

○地図を見る ○管理人は両下肢重度障害者ですが、生きる『ちから』を与えてくれる旅行が大好きです。
当事者の立場から多くの人達に『ちから』を与える情報を発信していく活動がしています。
両下肢重度障害者旅行で快適な宿泊は必須条件です。
車いすで快適に泊まれる宿を探すのは大変です。
そんな大変さを軽減する手助けになればと始めたのが、ハンディに優しいバリアフリーの宿の紹介です。

お客様の声

○2023年10月17日総合評価4.50 、サービス 4.57、立地 4.69、部屋 4.42、設備・アメニティ 4.19、風呂 3.67、食事 4.31
○バリアフリーの関する口コミ:3/2064件。

バリアフリー風呂

バスルームは浴槽手前に広い腰掛けスペース・手摺・シャワーチェア・浴槽台があり、浴槽への出入りも安心。

ホテル基本情報

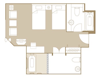
○障がい者駐車場(県営)が地下2階にに2台分の専用スペースがあります。地下駐車場からEVでホテルに入れます。入口W90cm、カゴサイズ:横幅 161cm×奥行158cmす。 ○障害者対応客室:車椅子を利用の方や、お身体の不自由な方にも安心して利用いただけるハンディキャッパールーム(スタンダード)は38㎡、定員3名、6階。入口W85cm、通路W115cm。ベッドは幅110cmx長さ200cmx2台、ベット間は58cm。室内は段差も無く、ドア幅や通路スペースも広めで車椅子利用の方にも安全・快適にお過ごしいただけます。面積38.0㎡の内、10.9㎡は浴室になります。バスルームは浴槽手前に広い腰掛けスペース・手摺・シャワーチェア・浴槽台があり、浴槽への出入りも安心です。浴槽:高さ54cm×深さ44cm×長 さ96cm奥行54cm。
○障害者対応エレベーター:あり
○障害者対応トイレ:あり
○貸出し用車いす:あり
○周辺の観光:金沢城・兼六園への散策に最高の場所、尾張町、大江町市場にも近い。他にひがし茶屋街、尾山神社、金沢城公園、金沢21世紀美術館 、石川県立美術館、天神橋、金沢神社
○JR金沢駅からタクシーで約8分、バスで約10分。北陸道金沢西又は東ICより車15分。◆送迎バス有(要予約)

腰掛けスペース

シャワーチェア

初心者向けミラーレスカメラ

ハンディのちから:ハンディ生活にちから(力)になる応援情報サイト内の画像・素材を
無断で複製・転載・転用することはご遠慮ください。
Copyright(C)2005.ハンディのちからAll Right Reserved.