ガーデニング
健康生活
トラベル
写真・カメラ
パソコン
ぶらり車いすバリアフリー旅行
バリアフリーの宿
全国のバリアフリーの宿を見る
中部地方のバリアフリーの宿を見る
バリアフリーの宿・
名古屋ガーデンパレス
管理人は両下肢重度障害者ですが、生きる『ちから』を与えてくれる旅行が大好きです。
当事者の立場から多くの人達に『ちから』を与える情報を発信していく活動がしています。
両下肢重度障害者旅行で快適な宿泊は必須条件です。
車いすで快適に泊まれる宿を探すのは大変です。
そんな大変さを軽減する手助けになればと始めたのが、ハンディに優しいバリアフリーの宿の紹介です。
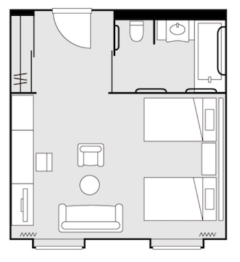
ホテル基本情報
○障害者対応客室:31㎡ユニバーサルツインルームあり、定員:1人~3人、ベッドサイズ(W×H):1,200mm×2,000mm×2台、車椅子でのご利用も可能なバスルームやトイレを完備。お部屋も広めの作りとなっております。ツインルーム入口ドア:引き戸。3点ユニットバスには背もたれ付きシャワーチェア・腰掛けスペース・長い手摺があり。
○障害者対応駐車場:あり
○車椅子の単独移動(客室または館内):可能
○障害者対応エレベータ:一般仕様エレベータあり
○障害者対応トイレ:あり
○貸出し用車いす:あり
○周辺の人気観光スポット:久屋大通、巨大招き猫、名古屋市科学館、でんきの科学館、名古屋市美術館、名古屋城、劇団四季、新名古屋ミュージカル劇場、市営交通資料センター、若宮八幡社、愛知縣護國神社、那古野神社、東照宮
○地下鉄東山線栄駅西改札1番出口から徒歩約5分。
腰掛けスペース
シャワーチェア
初心者向けミラーレスカメラ
香嵐渓紅葉11月初旬〜12月初旬
アフィリエイト
ホテル名古屋ガーデンパレス
○地図を見る
お客様の声
○2023年10月14日総合評価 4.12 、サービス 3.88、立地 4.06、部屋 4.21、設備・アメニティ 4.06、風呂 3.72、食事 4.59
○バリアフリーの関する口コミ:0/1398件。
浴室周り
3点ユニットバスには背もたれ付きシャワーチェア・浴槽脇腰掛けスペースがあり。
快適宿泊・愛知県(I)
ANAクラウンプラザ
マリオット
ダイワロイネット
快適宿泊・愛知県(II)
名古屋東急
名亀の井知多美浜
名鉄知多半田
快適宿泊・愛知県(III)
名鉄刈谷
メルパルク名古屋
西浦グランド吉慶
トラベルローカルナビ
移動方法・手段
快適な宿泊
観光スポット
地図で探す観光地
ハンディのちから:ハンディ生活にちから(力)になる応援情報サイト内の画像・素材を
無断で複製・転載・転用することはご遠慮ください。
Copyright(C)2005.ハンディのちからAll Right Reserved.