ぶらり車いすバリアフリー旅行

バリアフリーの宿・リッチモンドホテル成田

アフィリエイト


○地図を見る

お客様の声

○2024年1月12日総合評価 4.09 、サービス 3.89、立地 4.26、部屋 4.10、設備・アメニティ 3.88、風呂 3.44、食事 4.00
○バリアフリーの関する口コミ:0/2934件。

浴槽周り

湯船に入るための浴槽縁腰掛けスペースがありますが、少し狭いのでお体の状態に合わせ、危険でしたらおやめ下さい。

シャワーチェア

初心者向けミラーレスカメラ

重さから選ぶミラーレスカメラ

○管理人は両下肢重度障害者ですが、生きる『ちから』を与えてくれる旅行が大好きです。
当事者の立場から多くの人達に『ちから』を与える情報を発信していく活動をしています。
両下肢重度障害者旅行で快適な宿泊は必須条件です。
車いす利用者でも快適に入浴でき泊まれる宿を探すのは大変です。
そんな大変さを軽減する手助けになればと始めたのが、ハンディに優しいバリアフリーの宿の紹介です。

ホテル基本情報

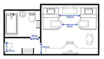
○障害者対応客室:広さ:30㎡、定員:2名のユニバーサルツインルームが1室あります。セミダブルサイズ(110cm幅)のベッドが2台入った部屋。入り口は横幅80㎝の引き戸です。背もたれ付のアームサポート固定の椅子を浴室内に予め用意しております。浴室とトイレ・洗面室には車椅子で入れます。湯船に入るための浴槽縁腰掛けスペースがありますが、少し狭いのでお体の状態に合わせ、危険でしたらおやめ下さい。バスタブ高さは48cmです。
○障害者用駐車場:身障者用駐車スペースがあり
◯車椅子での単独行動:可能
○車椅子対応エレベーター:一般仕様あり
○車椅子対応トイレ:あり
○貸出し用車いす:あり
○盲導犬や介助犬への対応:可
○周辺の人気観光スポット:成田国際空港第1旅客ターミナル、成田ゆめ牧場、成田山新勝寺、三里塚さくらの丘、成田市さくらの山、成田山新勝寺、滑河山龍正院、成田ゆめ牧場ファミリーオートキャンプ場、成田羊羹資料館、宗吾霊堂、成田観光館、成田山書道美術館
○成田空港行き無料シャトルバス運行中!(最新の運行状況、時刻表はホテルHP等でご確認くださいませ)。
ハンディのちから:ハンディ生活にちから(力)になる応援情報サイト内の画像・素材を
無断で複製・転載・転用することはご遠慮ください。
Copyright(C)2005.ハンディのちからAll Right Reserved.